2000 KVA Centerpoint Energy Pad Montovaný transformátor-24,9/0,48 KV|USA 2025
Kapacita: 2000 kVA
Napětí: 24,9/0,48 kV
Vlastnosti: Olej FR3
Jiangshan Scotech Electrical Co., Ltd je jedním z nejspolehlivějších výrobců a dodavatelů 2000 kva transformátoru namontovaného ve středovém bodě energetického bloku-24,9/0,48 kv|USA 2025 v Číně. Neváhejte a kupte si zde cenově výhodné produkty na prodej a získejte diagramy z naší továrny. Kontaktujte nás pro další podrobnosti.

V nedohlednu, nikdy mimo provoz. Transformátor s montáží-Discreet Pad.
01 Obecné
1.1 Popis projektu
2000 kVA třífázový podložkový transformátor byl dodán do USA v roce 2025. Jmenovitý výkon transformátoru je 2000 kVA s chlazením KNAN. Vysoké napětí je 24,9GrdY/14,376 kV s rozsahem odbočky ±2*2,5% (NLTC), nízké napětí je 0,48Y/0,277 kV, tvoří vektorovou skupinu YNyn0.
Podložkový transformátor SCOTECH je navržen tak, aby poskytoval vynikající spolehlivost, účinnost a bezpečnost pro distribuční sítě středního-napětí. Je vybaveno 3-fázovým 5-končetinovým jádrem, zajišťuje minimální magnetický únik a stabilní regulaci napětí i při kolísavé zátěži a zároveň splňuje přísné normy účinnosti DOE pro snížení energetických ztrát a provozních nákladů. Tato jednotka, naplněná kapalinou z přírodního esteru FR3, nabízí výjimečnou požární bezpečnost, biologickou odbouratelnost a prodlouženou životnost ve srovnání s konvenčním minerálním olejem, díky čemuž je ideální pro ekologicky citlivé a vysoce rizikové{10}}instalace. Integrované svodiče přepětí poskytují robustní ochranu proti přechodným přepětím a chrání vnitřní komponenty před bleskem a rušením sítě. Boční-skříň měřiče umožňuje pohodlné monitorování, údržbu a odečet měřidel na místě bez přerušení napájení a její bílý práškový lak RAL 9003 zajišťuje vynikající odolnost proti korozi a trvanlivost v drsných venkovních podmínkách. Tento transformátor je technicky vyspělé řešení pro spolehlivou distribuci energie.
1.2 Technická specifikace
Specifikace typu a datového listu transformátoru 2000 kVA podložky
|
Doručeno do
USA
|
|
Rok
2025
|
|
Typ
Transformátor namontovaný na podložce
|
|
Norma
IEEE Std C57.12.34-2022
|
|
Jmenovitý výkon
2000 kVA
|
|
Frekvence
60 Hz
|
|
Fáze
3
|
|
Krmivo
Smyčka
|
|
Přední
Mrtvý
|
|
Typ chlazení
KNAN
|
|
Primární napětí
24,9GrdY/14,376 kV
|
|
Sekundární napětí
0,48Y/0,277 kV
|
|
Navíjecí materiál
Hliník
|
|
Vektorová skupina
YNyn0
|
|
Impedance
5.75%
|
|
Účinnost
99.51%
|
|
Klepněte na Changer
NLTC
|
|
Rozsah klepnutí
±2*2.5%
|
|
Žádná ztráta zatížení
1,95 kW
|
|
Při ztrátě zatížení
13,15 kW
|
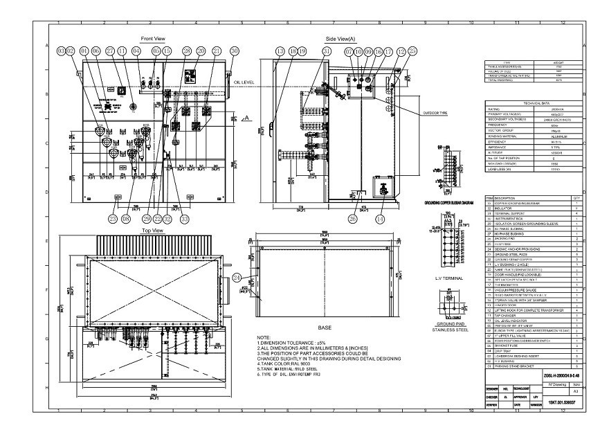
1.3 Výkresy
Výkres schématu a velikosti transformátoru 2000 kVA podložky.
![]() |
![]() |
02 Výroba
2.1 VN průchodka

Vložka průchodky Chardon 15/25/35 kV třídy 200A slouží jako vysokonapěťová průchodka pro transformátory namontované na podložce, navržená tak, aby se spojila s koleny pro odlehčení zátěže a sestavila se do jímek průchodek vyhovujících ANSI/IEEE 386-pro účinnou-instalaci a výměnu na místě. Vyžaduje čištění, rovnoměrné nanesení dodaného silikonového maziva, utažení ve směru hodinových ručiček na moment 150-180 lb-in a připojení měděného uzemňovacího vodiče č. 14, přičemž instalaci a údržbu provádí kvalifikovaný personál na systémech bez napětí s použitím vhodných ochranných prostředků.
2.2 Čtyřpolohový vypínač zátěže
Čtyřpolohový přepínač zátěže pro transformátory namontované na podložce (model FYN33-24-315) má jmenovité napětí 12 kV (24 kV) a jmenovitý proud 315 A, s klíčovými specifikacemi včetně výdržného napětí 65 kV/1 min AC (79 kV/1 min pro zlomeninu), 125 kV, tepelný impuls, krátkodobý proud 4 blesky Dynamický stabilní proud 63 kA a mechanická životnost přesahující 3000 operací. Vyznačuje se izolačním zlomem 145 kV, montuje se uvnitř nádrže transformátoru (tloušťka stěny nádrže 6-8 mm) pomocí 4 upevňovacích matic M10 a je vybaven 4 vnějšími omezovacími kolíky (průměr 8 mm, výška 16 mm) pro spolehlivé operace při přetržení.

2.3 Uzemňovací měděná tyč

Zemnící měděná tyč nainstalovaná na nízkonapěťové straně transformátoru namontovaného na podložce je měděná součást s vysokou-vodivostí, která je pevně připojena k uzemňovacímu systému transformátoru. Poskytuje spolehlivou cestu pro poruchový proud, účinně odvádí abnormální proud do země, aby chránil transformátor a související zařízení před poškozením, a zároveň zajišťuje bezpečnost personálu během provozu.
2.4 1'' horní plnicí ventil
1'' horní plnicí ventil pro transformátory namontované na podložce je horní-komponent určený pro plnění a doplňování transformátorového oleje. Přijímá velikost připojení 1'', zajišťuje těsné utěsnění, aby se zabránilo úniku oleje, umožňuje pohodlné a efektivní přidávání oleje během instalace nebo údržby a je kompatibilní se standardními konfiguracemi transformátorových nádrží namontovaných na podložce pro spolehlivý výkon.

2.5 Podtlakový manometr

Vakuový manometr YZ-70 pro transformátory namontované na podložce je vyhrazený nástroj pro monitorování provozu transformátoru tím, že odráží změny tlaku způsobené změnami teploty. Nabízí volitelné měřicí rozsahy (-0,04~0,04MPa nebo -0,08~0,08MPa), přesnost ±2,5 %, funguje při teplotě -40 stupňů ~80 stupňů a vlhkosti menší nebo rovné 80 %, je vybaven otočným voličem Φ70 a montážním šroubem M27×2, vyžaduje vertikální instalaci (vyhýbá se manipulaci s rozsahem a 3, zamezuje nutnosti překročení limitu/pouzdra měřidla Pravidelná 6měsíční kontrola s odstraněním houby před instalací.
03 Testování
Testy transformátoru namontovaného na podložce, v souladu s normami řady IEEE C57, zahrnují rutinní elektrické a mechanické kontroly, jako je odpor vinutí, poměr napětí, fázový poměr, žádná-ztráta zatížení/zátěž, odolnost izolace (aplikované/indukované napětí), izolační odpor a test úniku tlaku, stejně jako volitelná ověření výkonu, to vše pro ověření elektrické bezpečnosti, integrity izolace, provozní spolehlivosti a utěsnění konstrukce pro stabilní napájení.


04 Balení a doprava


05 Místo a shrnutí
Chápeme, že každý projekt má jedinečné požadavky na napájení, a náš tým se zavázal poskytovat řešení na míru, která jsou v souladu s vašimi konkrétními cíli. Od vlastních konfigurací napětí až po shodu s globálními průmyslovými standardy, SCOTECH stojí za každou jednotkou přísným testováním, odbornou technickou podporou a odhodláním k dlouhodobé-odolnosti. Vyberte si podložkové transformátory SCOTECH pro řešení napájení, které nejen splňuje vaše potřeby, ale je předvídá. Posuňme vaše projekty vpřed-kontaktujte náš prodejní tým ještě dnes, abychom prodiskutovali vaše požadavky a udělali první krok směrem k efektivnější a odolnější energetické budoucnosti.
SCOTECH – Powering Progress.
Populární Tagy: centerpoint energy pad namontovaný transformátor, výrobce, dodavatel, cena, náklady
You Might Also Like
1000 kVA Pad Mounted Transformer-13,2/0,48 kV|USA 2025
Transformátor 1000kVA-25/0,6 kV|Kanada 2024
500 kVA Pad Mount Transformer-13,8/0,48 kV|USA 2025
2500 kVA Třífázové transformátory s podložkou-25/0,6...
750 KVA Napájení transformátorové smyčky namontované...
1000 KVA Transformátor-24,9/0,48 KV|USA 2025
Odeslat dotaz











