2000 KVA Cooper Power Systems transformátory namontované na podložce-33,26/0,48 KV|USA 2025
Kapacita: 2000 kVA
Napětí: 33,26/0,48kV
Vlastnosti: s aretací
Jiangshan Scotech Electrical Co., Ltd je jedním z nejspolehlivějších výrobců a dodavatelů 2000 kva měděných napájecích systémů s podložnými transformátory-33,26/0,48 kv|USA 2025 v Číně. Neváhejte a kupte si zde cenově výhodné produkty na prodej a získejte diagramy z naší továrny. Kontaktujte nás pro další podrobnosti.

Transformátory namontované na podložce{0}: Kde se trvanlivé inženýrství setkává s chytrou distribucí.
01 Obecné
1.1 Popis projektu
2000 kVA třífázový podložkový transformátor byl dodán do USA v roce 2025. Jmenovitý výkon transformátoru je 2000 kVA s chlazením KNAN. Vysoké napětí je 33,26GrdY/19,203 kV s rozsahem odbočení ±2*2,5 % (NLTC), nízké napětí je 0,48Y/0,277 kV, tvoří vektorovou skupinu YNyn0.
Měděné napájecí systémy SCOTECH, přizpůsobené pro scénáře solární energie, skladování energie, komerční a průmyslové distribuce, kombinují optimalizovaný výkon a uživatelsky -centrický design, aby vyhovovaly různým- potřebám na místě. Jeho 3-fáze 5-končetiny a účinnost v souladu s DOE- maximalizují využití energie, což je zásadní výhoda pro systémy obnovitelné energie, kde se počítá každý watt. Použití kapaliny FR3 eliminuje nebezpečí požáru a rizika pro životní prostředí, a proto je{11}}volbou pro instalace v blízkosti obytných oblastí, datových center a projektů zelené energie. Vestavěné-svodiče přepětí chrání transformátor před napěťovými špičkami- musí-mít funkci pro venkovní sestavy namontované-na podložce vystavené nepředvídatelnému počasí. Boční-rozvaděč namontovaný na elektroměru zjednodušuje-provoz na místě, od sledování zátěže po kontroly údržby, zatímco elegantní bílý práškový-povrch RAL 9003 odolává UV záření, rzi a chemické korozi a zajišťuje dlouhodobou estetiku a funkčnost. Ať už jde o solární farmy připojené k síti nebo městská komerční centra, tento transformátor poskytuje bezproblémovou a udržitelnou distribuci energie.
1.2 Technická specifikace
Specifikace typu a datového listu 2000 kVA měděných napájecích systémů transformátorů namontovaných na podložce
|
Doručeno do
USA
|
|
Rok
2025
|
|
Typ
Transformátor namontovaný na podložce
|
|
Norma
IEEE Std C57.12.34-2022
|
|
Jmenovitý výkon
2000 kVA
|
|
Frekvence
60 Hz
|
|
Fáze
3
|
|
Krmivo
Smyčka
|
|
Přední
Mrtvý
|
|
Typ chlazení
KNAN
|
|
Primární napětí
33,26GrdY/19,203kV
|
|
Sekundární napětí
0,48Y/0,277 kV
|
|
Navíjecí materiál
Hliník
|
|
Vektorová skupina
YNyn0
|
|
Impedance
5.75%
|
|
Účinnost
99.51%
|
|
Klepněte na Changer
NLTC
|
|
Rozsah klepnutí
±2*2.5%
|
|
Žádná ztráta zatížení
1,95 kW
|
|
Při ztrátě zatížení
13,15 kW
|
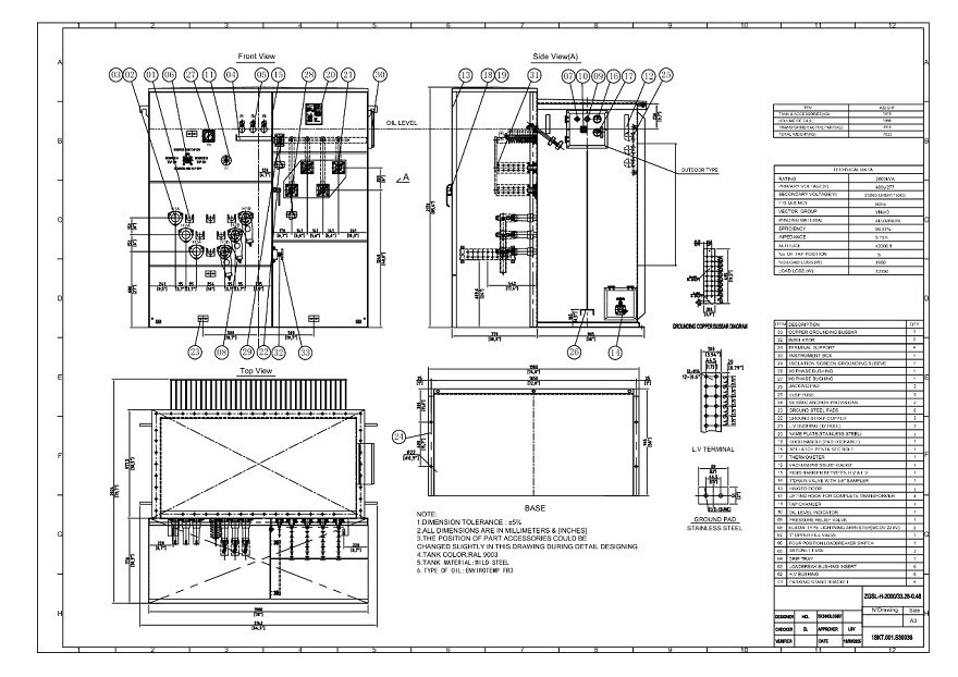
1.3 Výkresy
Výkres schématu a velikosti transformátoru 2000 kVA podložky.
![]() |
![]() |
02 Výroba
2.1 Jádro

Železné jádro měděných napájecích transformátorů namontovaných na podložce je vyrobeno z vysoce -kvalitních laminovaných za studena{1}} válcovaných silikonových ocelových plechů, které jsou navrženy tak, aby minimalizovaly vířivé proudy a ztráty hystereze. Tvoří magnetický obvod transformátoru pro účinné vedení toku, poskytuje mechanickou podporu vinutí a má správné uzemnění pro zajištění bezpečného a stabilního provozu s optimální energetickou účinností.
2.2 Navíjení
Cívka (vinutí) měděných napájecích transformátorů namontovaných na podložce je vyrobena z měděných/hliníkových vodičů navinutých do vysokonapěťových (VN) a nízkonapěťových (NN) sekcí, obalených robustními izolačními materiály (jako je laminovaný papír) pro elektrickou izolaci. Navinutý kolem jádra splňuje izolační/tepelné standardy IEEE (přizpůsobené prostředí ponořeném do kapaliny-), zajišťuje mechanickou stabilitu vůči namáhání při instalaci/provozu a umožňuje účinnou konverzi napětí a přenos energie.

2.3 Nádrž

Nádrž transformátorů měděných napájecích systémů je svařovaná, utěsněná ocelová skříň určená pro venkovní instalaci na úrovni země-. Je v něm umístěna sestava jádra a cívky a je naplněn buď minerálním olejem, nebo méně-hořlavou dielektrickou kapalinou pro izolaci a chlazení. Nádrž je robustní a odolná proti manipulaci-, s nízkým-profilem, typicky žebrovaným nebo vlnitým designem pro zvýšenou pevnost a odvod tepla. Všechny živé části jsou bezpečně uzavřeny uvnitř, zatímco vnější uzamykatelné oddíly poskytují přístup k primárním a sekundárním kabelovým spojům, průchodkám a ochranným zařízením, což zajišťuje bezpečnost pro veřejnost a pracovníky veřejných služeb.
2.4 Aktivní část
Aktivní část (sestava jádra) měděných napájecích transformátorů namontovaných na podložce na obrázku je integrovaná součást jádra: skládá se ze tří{0}}fázově izolovaných vinutí (navinutých a obalených izolačním materiálem) namontovaných na laminovaném železném jádru, spárovaných s izolovanými přívodními dráty (přibalenými pro organizaci) a kovového nosného rámu. Tato sestava je pevná a izolovaná, aby byla zajištěna stabilní magnetická-elektrická koordinace mezi jádrem a vinutím, zatímco vodiče si rezervují rozhraní pro připojení externích komponent a připravují ji pro instalaci do nádrže transformátoru-vše splňující normy elektrické izolace a mechanické stability.

03 Testování
Transformátory-na podložce procházejí řadou přísných testů, aby byla zajištěna spolehlivost a bezpečnost. Patří mezi ně rutinní testy na každé jednotce, jako je měření izolačního odporu, testy poměru otáček, ověření polarity a měření bez-zátěže a ztráty. Kromě toho jsou podrobeny dielektrickým testům, včetně testů aplikovaného napětí a indukovaného potenciálu, aby se ověřila integrita izolace. Všechny jednotky musí také projít mechanickými a provozními kontrolami příslušenství, jako jsou přepínače odboček, a také závěrečnými kontrolními kontrolami. Typové testy, včetně testů odolnosti proti nárůstu teploty a zkratu-, se provádějí na reprezentativních jednotkách za účelem ověření návrhu.


04 Balení a doprava
4.1 Balení

Balení měděných napájecích transformátorů na podložce odpovídá mezinárodním standardům a specifickým požadavkům{0}}projektu a používá fumigovaná dřevěná pouzdra nebo vyztužené ocelové rámy s vnitřními nárazuvzdornými nárazníky (pěna/guma) k zajištění nádrže, průchodek a příslušenství. Zahrnuje utěsněnou ochranu proti vlhkosti/rzi, standardizované štítky (výstražné značky, informace o produktu, značky „Keep Upright“/„Shockproof“) připevněné na specifikovaných místech a bezpečné páskování pro stabilitu během přepravy, které zajišťuje, že jednotka zůstane neporušená až do dodání.
4.2 Doprava
Přeprava měděných napájecích systémů na podložce transformátorů DDP vyžaduje, aby prodávající převzal plnou odpovědnost za robustní, nárazuvzdorné a vlhkotěsné -balení (ochrana jádra, vinutí, nádrže a příslušenství), výběr námořní/pozemní přepravy vhodné pro těžké vybavení, kompletní celní odbavení, pokrytí všech cel a daní, dodržování IMDG, DOT a příslušných mezinárodních přepravních předpisů a bezpečné dodání nepoškozeného transformátoru{1} určeného k instalaci{1} kupujícímu{1} k instalaci.{1}

05 Místo a shrnutí
Ve společnosti SCOTECH jsou naše transformátory{0}} namontované na podložce měřítkem spolehlivosti, účinnosti a technické dokonalosti v systémech distribuce energie. Jsou vyrobeny s plně uzavřenou strukturou odolnou proti korozi-a pokročilou technologií jádra s nízkými-ztrátami a poskytují konzistentní, nepřetržitý výkon s minimální údržbou, snižují provozní náklady a prostoje během celého životního cyklu.
U každé jednotky, kterou vyrábíme, upřednostňujeme přesnost a flexibilitu. Od vlastních jmenovitých hodnot napětí až po vylepšené bezpečnostní funkce, náš tým úzce spolupracuje na vytváření řešení, která odpovídají vašim přesným technickým specifikacím a provozním požadavkům. Naše transformátory, podporované přísnými procesy kontroly kvality a komplexní poprodejní-podporou, jsou důkazem našeho odhodlání poskytovat dlouhodobou-hodnotu a klid pro každého zákazníka. Vyberte si SCOTECH pro transformátory, které nejen splňují průmyslové standardy,{5}}které je stanoví. Staňte se partnerem a nechte naše odborné znalosti pokrýt vaše nejkritičtější potřeby energetické infrastruktury.

Populární Tagy: měděné napájecí systémy podložkové transformátory, výrobce, dodavatel, cena, náklady
You Might Also Like
2500 kVA Rezidenční elektrické transformátory-34,5/0...
400 kVA Padmount Transformer-23/0,4 kV|Chile 2024
500 kVA Pad Mount Transformer-13,8/0,48 kV|USA 2025
500 kVA Transformátor namontovaný na podložce-24/0,4...
2000 KVA Centerpoint Energy Pad Montovaný transformá...
2000 KVA Bajonetový pojistkový transformátor namonto...
Odeslat dotaz











